Skip to content
Gillis

Gillis Architects

Matching Architectural Excellence
with Client Needs

Gillis
  • Home
  • About
  • Services
  • Team
  • Work
    • Residential
    • Corporate
    • Archives
  • Archives
    • Back Story
    • Portfolio-old
    • Miscellany
    • Prototypes
    • Before and After
    • Furnishings
    • Case Studies
  • Clients
  • Praise
    • Testimonials
    • Publications
  • Contact
  • FEATURED WORK
  • Residential
  • Corporate
  • Houses
  • Townhouses
  • Apartments

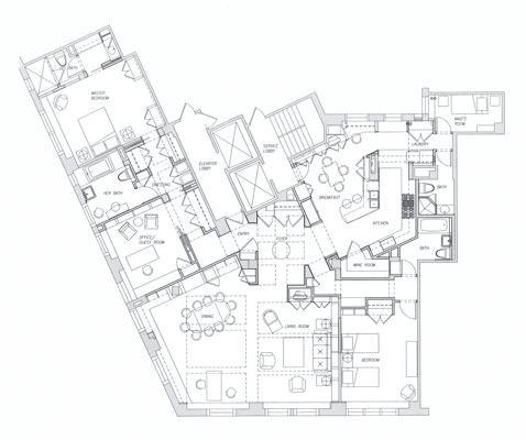
110 Riverside Drive

New York NY

This pre-war apartment on Riverside Drive in NYC has Hudson River views. We reconfigured the rooms and circulation to create a ceremonial entry, a larger living/dining room with wraparound river views and a large eat-in kitchen. The new arrangement resulted in many more closets and a walk-in wine cellar.

Gillis Architects-RSD110-TM7784
Gillis Architects-RSD110-bath
Gillis Architects-RSD110-kitchen
Gillis Architects-RSD110-foyer
Floor Plan
Gillis Architects-RSD110-gallery
Gillis Architects-RSD110-card

Let's Talk

We're always interested in your ideas for an architectural project.

Click to get in touch and start a conversation about enhancing your living or working space.

Gillis Architects PC

New York
Santa Fe
East Hampton

Matching
Architectural Excellence
with Client Needs

  • Home
  • About
  • Services
  • Work
    • Residential
    • Corporate
    • Archives
  • Team
  • Clients
  • Blog
  • Contact

Let's Talk

212-243-5330
Email

© 2026 Gillis Architects PC

Brand & Website Design by Ditto! Design!

Scroll To Top