Skip to content
Gillis

Gillis Architects

Matching Architectural Excellence
with Client Needs

Gillis
  • Home
  • About
  • Services
  • Team
  • Work
    • Residential
    • Corporate
    • Archives
  • Archives
    • Back Story
    • Portfolio-old
    • Miscellany
    • Prototypes
    • Before and After
    • Furnishings
    • Case Studies
  • Clients
  • Praise
    • Testimonials
    • Publications
  • Contact
  • FEATURED WORK
  • Residential
  • Corporate
  • Projects

Jaguar Dealership

New York NY

Needs project the description

Architectural drawing for a proposed Jaguar dealership design in New York City
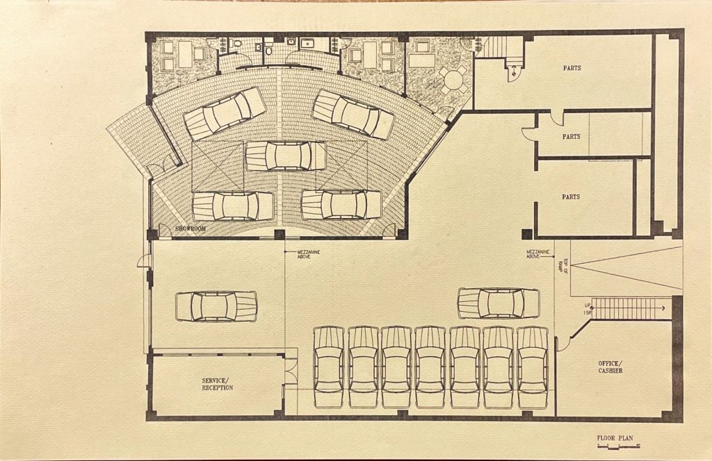
Architectural drawing for a proposed Jaguar dealership floor plan design in New York City
Architectural drawing for a proposed Jaguar showroom design in New York City
Architectural drawing for a proposed Jaguar dealership design in New York City
Architectural drawing for a proposed Jaguar showroom design in New York City

Let's Talk

We're always interested in your ideas for an architectural project.

Click to get in touch and start a conversation about enhancing your living or working space.

Gillis Architects PC

New York
Santa Fe
East Hampton

Matching
Architectural Excellence
with Client Needs

  • Home
  • About
  • Services
  • Work
    • Residential
    • Corporate
    • Archives
  • Team
  • Clients
  • Blog
  • Contact

Let's Talk

212-243-5330
Email

© 2026 Gillis Architects PC

Brand & Website Design by Ditto! Design!

Scroll To Top