Skip to content
Gillis

Gillis Architects

Matching Architectural Excellence
with Client Needs

Gillis
  • Home
  • About
  • Services
  • Team
  • Work
    • Residential
    • Corporate
    • Archives
  • Archives
    • Back Story
    • Portfolio-old
    • Miscellany
    • Prototypes
    • Before and After
    • Furnishings
    • Case Studies
  • Clients
  • Praise
    • Testimonials
    • Publications
  • Contact
  • FEATURED WORK
  • Residential
  • Corporate
  • Houses
  • Townhouses
  • Apartments

West 102nd Street

New York, NY

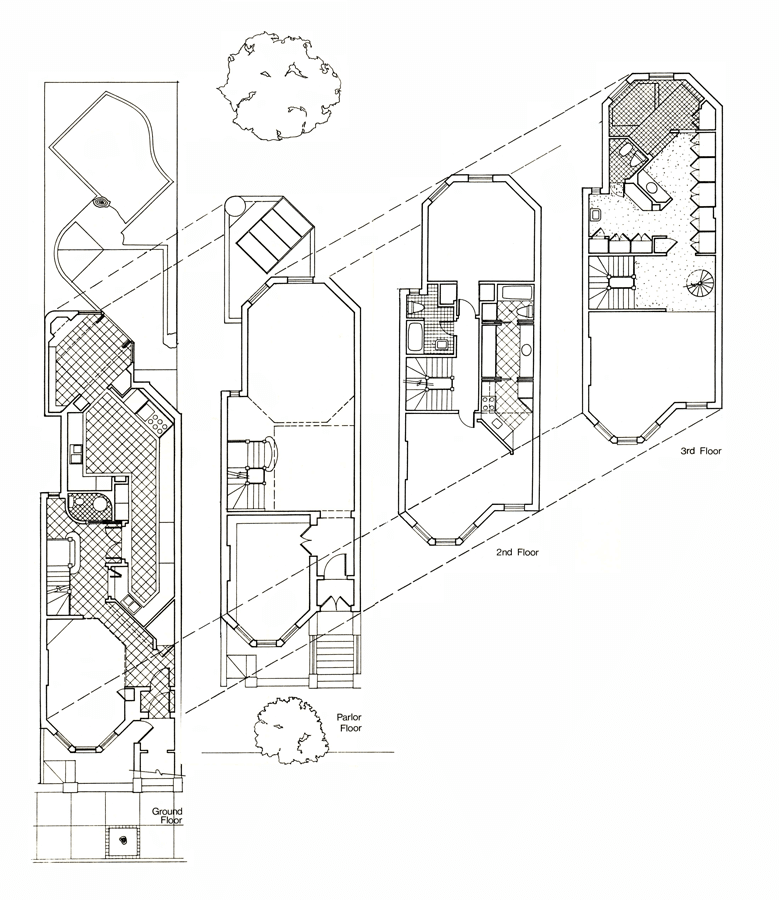
For this project, the owners wanted a design reflecting their Eastlake antique furniture collection. Over time, many of the house’s details had been stripped away and painted over, but enough was left to create new details and built-ins in the original style of this Clarence True home. The notable exception is the kitchen, which is modern for functional necessity.    

 

West-102nd-St-Kitchen
Exterior of 307 West 102 St, NY, NY
West-102nd-St-Dining-Room
West-102nd-St-Bath
West-102nd-St-Breakfast-Room
West-102nd-St-Living-Room
307-West-102nd-St-Plans
West-102nd-St-Kitchen

Let's Talk

We're always interested in your ideas for an architectural project.

Click to get in touch and start a conversation about enhancing your living or working space.

Gillis Architects PC

New York
Santa Fe
East Hampton

Matching
Architectural Excellence
with Client Needs

  • Home
  • About
  • Services
  • Work
    • Residential
    • Corporate
    • Archives
  • Team
  • Clients
  • Blog
  • Contact

Let's Talk

212-243-5330
Email

© 2026 Gillis Architects PC

Brand & Website Design by Ditto! Design!

Scroll To Top